GSC Building Extension Confirmed
Garioch Sports Trust are delighted to confirm that following the granting of Detailed Planning Permission we have secured the required grant funding to deliver our next capital project and facility enhancement at Garioch Sports Centre.
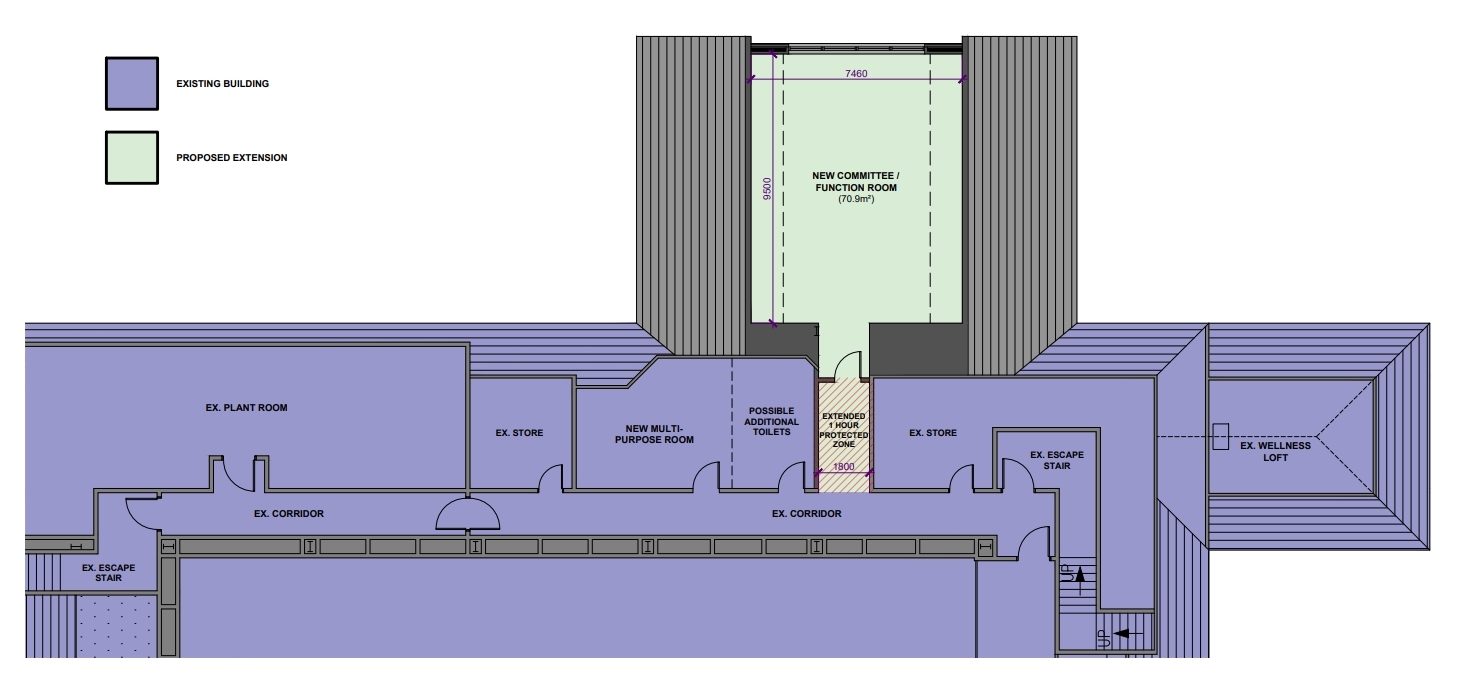
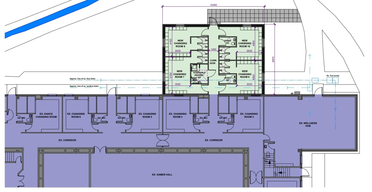
This latest project will see a sympathetic extension constructed to the rear of the building providing an additional 4 new changing rooms ,toilets and showering facilities on the ground floor and a multi-purpose community space on the first floor. These additions are desperately needed as the demand for our expanded facilities at GSC continues to grow and this extension will allow us to maximise the use of our external facilities whilst also servicing the demands of our users on internal facilities.
The Trust are delighted to have again appointed local contractors as we continue our policy of supporting the local economy and those who continue to support us as a local charity.
Works will commence before the end of the year and we will complete these with as little disruption as possible to the day to day running of the facilities.
This is another major milestone for GSC and we thank you for your continued support and patience as these improvements are completed.









































































































































